• Photo 1 410 000 € vente
  • Photo 2 410 000 € vente
  • Photo 3 410 000 € vente
  • Type: Appartement neuf
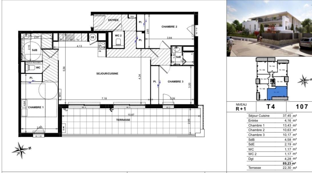
  • Surface: 89m2
  • 3 Chambres
  • 1 Salle de bain
  • 1 Salle d'eau
  • Brignoles

Appartement 4 pièces de 89 à Brignoles

410 000 € - Ref. 2113107P

83170 BRIGNOLES T4 NEUF 89m2 avec Terrasse et deux places de parking en sous sol - L'Agence REX vous propose à la vente cet appartement NEUF livré fin 2026 de 89m2 avec une terrasse de 22,30m2 situé dans un quartier apprécié au premier étage d'une copropriété de 19 logements
Il comprend, une entrée, un grand séjour avec cuisine ouverte, trois chambres, une salle de bain, une salle d'eau et deux toilettes séparés
Climatisation réversible dans le séjour et les chambres
RT 2020
Ascenseur
Volets roulants
Deux places de parking en sous sol
Accès sécurisé
Frais de notaire estimés 2%
Contactez nous pour plus de détails et découvrir les autres appartements de cette belle résidence. Le bien est soumis au statut de la copropriété , la copropriété comporte 19 lots.
Honoraires à la charge du vendeur. Les informations sur les risques auxquels ce bien est exposé sont disponibles sur le site Géorisques : https://www.georisques.gouv.fr


PARTAGEZ :    

Informations détaillées

  • Numéro Etage : 1
  • Nombre d'étage(s) : 2
  • Surface Habitable : 89
  • Surface du séjour : 37
  • Nombre de pièce(s) : 4
  • Nombre de chambre(s) : 3
  • Nombre de Niveaux : 3
  • Catégorie : Appartement neuf
  • Etat Général : Bon état
  • Salle de bain : 1
  • Salle d'eau : 1
  • Nombre de Parking(s) : 2
  • Nombre de terrasse(s) : 1
  • Installation Eau Chaude : Ballon électrique
  • Accès handicapé : Oui
  • Ascenseur : Oui
  • Localisation : Centre ville
  • Exposition : Ouest
  • Chauffage : Individuel
  • Mécanisme de chauffage : Radiateur